Skip To Content

2817 Lillian Lane

Douglasville, GA 30135
  • $289,990
  • STATUS: Active
  • ON SITE: 23 Days
  • MLS #: 10662541
Price Reduced
UPDATED: 220 min ago
$289,990
  • 3
    BEDS
  • 0.06
    ACRES
  • 2
    BATHS
  • 1
    1/2 BATHS
  • 1,740
    SQFT
  • $167
    $/SQFT
Type:
Townhouse
Built:
2025
County:
Area:

School Information

Elementary School:
Middle School:
High School:

Description

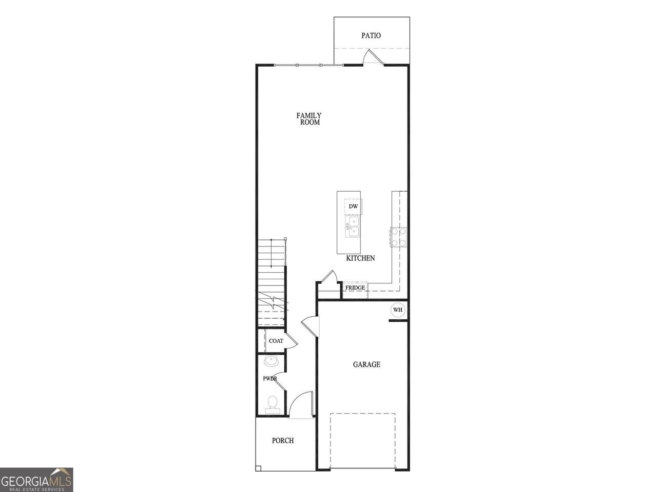
The Hanson plan built by Stephen Elliott Homes. Quick Move-In! This Beautiful quality townhome in a prime location in Douglasville. This is the perfect opportunity for first-time homebuyers seeking comfort and charm with a modern feel of a luxury townhome. Step inside from the front porch and be greeted by the welcoming foyer with the stairwells that are perfectly stained to match the LVP flooring of your choice. The family room is elegant and and perfect for intimate gatherings & special occasions. LVP flooring is laid out on the main level. The kitchen is complete with painted cabinetry aligning stainless steel appliances and recessed lighting. The contemporary kitchen is complete with a size-able pantry and a perfect island. The owner's suite awaits, offering a peaceful retreat complete with a sizeable shower and dual vanities, plus a spacious walk in closet. Two secondary bedrooms, a guest bath, and a convenient laundry room round out the upper level. Outside, the private porch is perfect for star gazing and BBQ grilling under the night sky. Come explore Douglasville with an exuberant downtown with a variety of parks, trails and also many delicious restaurants. Contact us today to embark on the exciting journey of homeownership! AAsk us about our $10,000 Any Way You Want It* incentive with use of preferred lender with binding contract by 02/15/2026.

Monthly Payment Calculator



Georgia MLS logo© 2026 Georgia Multiple Listing Service, Inc. All rights reserved. The data relating to real estate for sale or lease on this web site comes in part from GAMLS. Real estate listings held by brokerage firms other than Statesboro Real Estate are marked with the GAMLS logo or an abbreviated logo and detailed information about them includes the name of the listing broker. IDX information is provided exclusively for consumers' personal, non-commercial use and may not be used for any purpose other than to identify prospective properties consumers may be interested in purchasing. Information is deemed reliable but is not guaranteed accurate by GAMLS or Statesboro Real Estate. Data last updated: 2026-01-23T00:09:43.397.
www.buystatesboro.com/homes/171626255
Print Image

2817 Lillian Lane Douglasville, GA 30135

  • Price: $289,990
  • Status: Active
  • On Site: 23 Days
  • Updated: 220 min ago
  • MLS #: 10662541
3
Beds
2
Baths
1
½ Baths
0.06
Acres
1,740
SQFT
$167
$/SQFT
2025
Built
Neighborhood:
The Reserve At Clocktower
County:
Douglas
Area:
Douglasville
Elementary School:
Factory Shoals
Middle School:
Chestnut Log
High School:
New Manchester
Property Description
The Hanson plan built by Stephen Elliott Homes. Quick Move-In! This Beautiful quality townhome in a prime location in Douglasville. This is the perfect opportunity for first-time homebuyers seeking comfort and charm with a modern feel of a luxury townhome. Step inside from the front porch and be greeted by the welcoming foyer with the stairwells that are perfectly stained to match the LVP flooring of your choice. The family room is elegant and and perfect for intimate gatherings & special occasions. LVP flooring is laid out on the main level. The kitchen is complete with painted cabinetry aligning stainless steel appliances and recessed lighting. The contemporary kitchen is complete with a size-able pantry and a perfect island. The owner's suite awaits, offering a peaceful retreat complete with a sizeable shower and dual vanities, plus a spacious walk in closet. Two secondary bedrooms, a guest bath, and a convenient laundry room round out the upper level. Outside, the private porch is perfect for star gazing and BBQ grilling under the night sky. Come explore Douglasville with an exuberant downtown with a variety of parks, trails and also many delicious restaurants. Contact us today to embark on the exciting journey of homeownership! AAsk us about our $10,000 Any Way You Want It* incentive with use of preferred lender with binding contract by 02/15/2026.
Exterior Features

Architectural Style Traditional Attached Garage YN No Carport YN No Common Walls End Unit Construction Materials Other Foundation Details Slab Garage YN Yes Levels Two Lot Features Level Lot Size Area 2482.92 Lot Size Source Other Lot Size Units Square Feet Parking Features GarageGarage Door Opener Parking Total 0 Patio And Porch Features Patio Roof Composition Total Number Of Slips 0 View City View YN Yes

Interior Features

Above Grade Finished Area 1740 Above Grade Finished Area Units Square Feet Appliances DishwasherDisposalMicrowaveStainless Steel Appliance(s) Basement None Below Grade Finished Area 0 Below Grade Finished Area Units Square Feet Below Grade Unfinished Area 0 Building Area Total 1740 Building Area Units Square Feet Cooling Ceiling Fan(s)Central Air Cooling YN Yes Dining Room Features Dining Rm/Living Rm Combo Fireplace YN No Fireplaces Total 0 Flooring CarpetLaminate Heating Electric Heating YN Yes Interior Features Double VanityHigh CeilingsRear StairsWalk-In Closet(s) Kitchen Features Kitchen IslandPantrySolid Surface Counters Laundry Features Upper Level Living Area Source Builder Living Area Units Square Feet Main Level Bathrooms 0 Main Level Bedrooms 0 Rooms Family Room

Property Features

Association Fee 720 Association Fee Includes Management Fee Association YN Yes Community Features None District 18TH Electric On Property YN Yes Es Bus Yn Yes Home Warranty YN Yes Hs Bus Yn Yes Land Lease YN No Land Lot 1010 Listing Terms CashConventionalFHAUSDA LoanVA Loan Ms Bus Yn Yes New Construction YN Yes Property Attached YN Yes Property Condition New Construction Property Sub Type Townhouse Section 2ND Security Features Carbon Monoxide Detector(s)Smoke Detector(s) Sewer Public Sewer Structure Type Other Tax Annual Amount 0 Tax Year 2025 Unit NA Utilities Electricity AvailablePhone AvailableSewer ConnectedUnderground UtilitiesWater Available Water Body Name None Water Source Public

GAMLS logo Listing provided courtesy of Re/Max Tru, Inc.: 770-502-6230. © 2026 Georgia Multiple Listing Service, Inc. All rights reserved. Information Deemed Reliable But Not Guaranteed.


Georgia MLS logo© 2026 Georgia Multiple Listing Service, Inc. All rights reserved. The data relating to real estate for sale or lease on this web site comes in part from GAMLS. Real estate listings held by brokerage firms other than Statesboro Real Estate are marked with the GAMLS logo or an abbreviated logo and detailed information about them includes the name of the listing broker. IDX information is provided exclusively for consumers' personal, non-commercial use and may not be used for any purpose other than to identify prospective properties consumers may be interested in purchasing. Information is deemed reliable but is not guaranteed accurate by GAMLS or Statesboro Real Estate. Data last updated: 2026-01-23T00:09:43.397.
 
https://bt-photos.global.ssl.fastly.net/gamls/1280_boomver_1_10662541-2.jpg https://bt-photos.global.ssl.fastly.net/gamls/1280_boomver_1_10662541-2.jpg https://bt-photos.global.ssl.fastly.net/gamls/1280_boomver_1_10662541-2.jpg
Logo
Statesboro Real Estate
1550 Brampton Ave., Suite B
Statesboro GA, 30458